Trilocale in vendita

Roma, Via Sante Marie - Castelverde
€ 145.000
3 locali 3 locali
70 Mq 70 Mq
2 bagni 2 bagni

Trilocale in vendita

Roma, Via Sante Marie - Castelverde

Descrizione annuncio

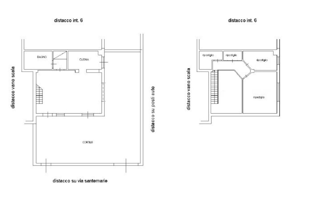
CASTELVERDE- PIANO TERRA CON INGRESSO INDIPENDENTE IN ZONA CENTRALE.

Proponiamo in vendita, nella zona centrale di Castelverde, un appartamento al piano terra di una palazzina in cortina con ingresso indipendente pedonale e carrabile.

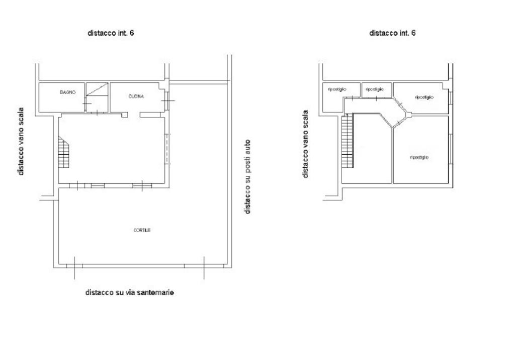
L'immobile, internamente, è composto da salone con cucina a vista e bagno cieco con vasca al piano terra. Il piano superiore è composto da un locale adibito a camera, un locale adibito a cameretta, un ripostiglio ed un locale adibito a bagno cieco con doccia.

La soluzione è dotata di persiane, infissi in pvc e predisposizione per l'impianto di condizionamento.

Completano la proprietà una corte mattonata di circa 90 mq e due posti auto interni. Recentemente ristrutturata. Libera da subito.

Mostra tutto

Nelle vicinanze

Trasporto pubblico Trasporto pubblico
Massa S. Giuliano/Grifi
Massa S. Giuliano/Grifi
160 m
Massa S. Giuliano/Alanno
Massa S. Giuliano/Alanno
190 m
Scuole Scuole
Istituto Comprensivo Castelverde
300 m
Prato Fiorito
2,6 Km
Scuole
2,7 Km
Farmacia Farmacia
Farmacia
2,0 Km
Farmacia Colle del Sole
2,1 Km
Supermercati Supermercati
Supermercati
1,8 Km
Unico
2,1 Km
EuroSpin
3,0 Km
Negozi Negozi
Panificio
950 m
Ristoranti Ristoranti
Caffetteria Osteria Gabii
2,5 Km
Mostra tutto

Caratteristiche

Rif.:
61170926
Piano:
Terra con giardino di 3
Totale piani:
3
Posti auto:
2
Camere da letto:
2
Arredamento:
Assente
Mostra tutto
Prezzo Prezzo
€ 145.000
Rata mutuo Rata mutuo
€ 677 / mese
Spese annue Spese annue
€ 120
Proponi il tuo prezzoProponi il tuo prezzo

Classe Energetica

G
G
G
G
G
G
G
G
G
EP invernale del fabbricato:
EP estiva del fabbricato:
Anno di costruzione:
1980
Riscaldamento:
Autonomo
Tipo impianto:
A radiatori
Tipo alimentazione:
Metano

Ti interessa visionare l'immobile?

Fissa un appuntamento  Fissa un appuntamento

Richiedi informazioni

Clicca su Leggi per aprire l'informativa
* Questi campi sono obbligatori

Calcola il tuo mutuo

Semplice e senza impegno
Anticipo

( % )
Mutuo

( % )

pochi semplici passi

inserisci i tuoi dati
Questionario completato
Grazie per aver richiesto un appuntamento senza impegno con un nostro Consulente del Credito e Assicurativo.

Hai inserito correttamente tutti i dati necessari e a breve riceverai una e-mail con un link da convalidare per inviare i tuoi dati.
Affiliato
Roma Est Immobiliare Srlu
Via Massa di San Giuliano, 295 00132 Roma (RM)

Il nostro staff


  • Massimo Pilone
    Affiliato

  • Gloria Giacinti
    Coordinatrice
Via Massa di San Giuliano, 295 00132 Roma (RM)
Zona: Castelverde-Giardini di Corcolle
Mostra su mappa
Orari: Dal lunedì al venerdì: 08:45 - 13:00 / 15:00 - 19:30; Sabato: 08:45 - 13:00 / 15:00 - 18:00. Domenica su appuntamento.
Affiliato
Roma Est Immobiliare Srlu
Via Massa di San Giuliano, 295 00132 Roma (RM)

2026 Tecnocasa Franchising S.p.A. - P. IVA 08365160152 - Via Monte Bianco 60/A 20089 Rozzano (MI). Ogni agenzia ha un proprio titolare ed è autonoma. Privacy policy | Policy utilizzo | Cookie policy